HOME | WORK | ADANTI_R

 

油山団地リノベーション

 今回は、団地の一室の改装です。あらためて、この時代の作り方を見ると、とてもゆとりのある建て方をしているんですよね。住棟の間隔だったり、敷地に公園や公民館などのスペースがあったり。現在では、こんな贅沢考えられないですよね。この貴重な資産を有効に使えるように心配りしました。

A団地1
before
A団地2
after

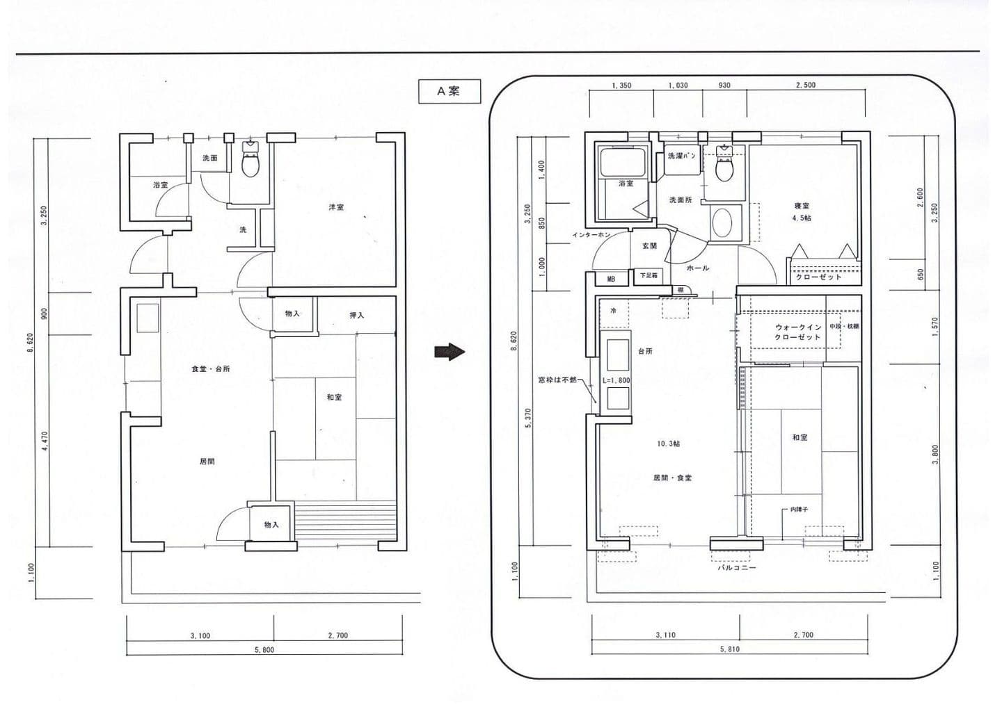
A団地プラン
プラン

A団地3
before:バランス窯のお風呂
A団地4
before:外壁面に断熱材なし
A団地5
after:オーダーのユニットバス

 
 このころの団地のお風呂は、バランス釜でした。追い炊きができたり、今考えるとエコな装置だと思うのですが、部屋内にあるガスに、若い人が恐怖を感じるらしく、入居される人から敬遠されるそうです。今回は、現状の広さに合わせたユニットバスに変更することにしました。給湯リモコンも設置しました。


A団地7

一度スケルトンにした後、給水管、排水管などを新しくしていきます。
 

A団地8
外壁面に断熱材を設置していきます。
A団地9
after:キッチン
A団地10
after:リビング
A団地11
after:玄関花台
A団地12
after:クローゼット

作品集リストへ

少ないエネルギーで暮らせる”すまい”づくり
(日・祝日は基本的にはお休みです。)