HOME | WORK | OBARU2

 

フォトスタジオ・オバル 着付け室

 創業35年の瑞乗写真館を解散後、2001年に「Photo Studio OBARU」としてリニューアルオープンした写真館です。サービスの一環でやっておられた着付け。知らない間に衣装の数もかなり充実したものに。

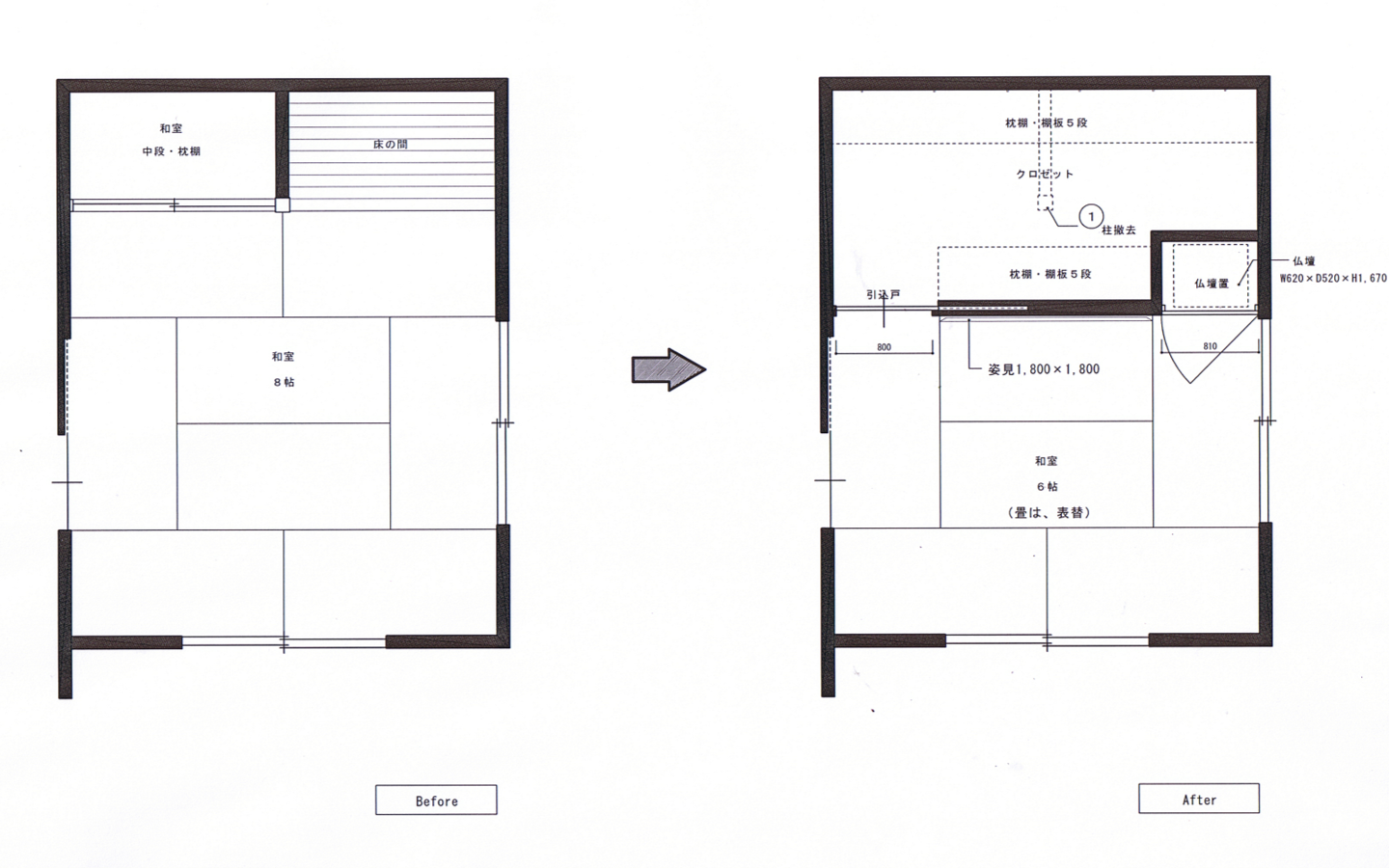
 そのご自宅の一室を着付け室にリフォームしました。たくさんの和服があり、お客様が来られるたびに必要なものとそうでないものを整理されていたそうです。今回のリフォームでは、そのたくさんの衣装を収納するスペースと着付けスペースをすっきり分け、それをデザイン的に処理することでした。
オバル1
 
before
オバル2
 
after

 たくさんの着物を一目で識別できるように大きめの収納をつくりました。収納スペースの両サイドに棚を設置。可動棚ですので、大きさを合わせて収納の高さを変えることができます。

オバル3
プラン
オバル4
収納部の下地の写真
 左の写真は、衣装の収納スペースの下地の写真です。パネルは、竹炭のパネルで、防湿効果のある部材です。断熱材の入っていなかったところにも今回の工事をきっかけに断熱材を追加しています。
 あとは、防虫効果を期待して、桐のパネルを張りました。大事な衣装をこれでしっかり守れるのではないでしょうか。
オバル5
着付け室
 左の写真の左側には、姿見用の大きな鏡を設置しました。こうすることで狭くなった部屋を視覚的に広く見せる効果がでてきました。

店舗写真

オバル6
 
  ご自宅の改装以外にも、福岡ガーデンパレスの4階写真場の内装リフォームもおこないました。ちょっと色を変えただけで随分雰囲気がかわりました。
オバル7
※Before 
以前使われていた写真館の内装。今回、気分一新で内装をやりかえることになりました。
オバル8
※After 
清潔感のある色合いに変更しました。写真を撮りますので、撮影に邪魔にならない色合いにいくつものサンプルを準備し選んでいただいた仕上です。

 

オバル9
 
オバル10
 

 

オバル10
 
オバル11
 

 

ブログ 『フォトスタジオ・オバル店舗改装日記』 

 創業35年の瑞乗写真館を解散後、2001年に「Photo Shop OBARU」としてリニューアルオープンした写真館。 その写真館の福岡ガーデンパレス4階の写真場の改装工事と着付け室の改装工事をあわせてご紹介いたします。 
   ~千建築設計 
 
 

作品集リストへ

少ないエネルギーで暮らせる”すまい”づくり
(日・祝日は基本的にはお休みです。)