
M様邸 (部分リノベーション)
 建築設計の世界に入って20数年。その間、住宅を中心にRC造、S造、木造などさまざまな”すまい”を設計してきました。私の勝手なイメージですが、RC造、S造の設計が引き算の設計に対して、木造の設計は、足し算だと考えています。今回の部分リノベーション工事では、そのことが証明されるひとつの根拠になりました。
 オーナーが生まれ育ったご自宅は、戦後すぐのころは、和室2間と水廻りのコンパクトな”すまい”だったそうで、数度の増築・改装を経て、現在の形になってきました。今回は、面積を増やさず、内部の間取りをリノベーションするということでお仕事を受けたのですが、解体の時、その時代、時代の特徴が表れていて、とても興味深く、面白く取り組むことができました。RC造やS造の建物にくらべて、木造の住宅(特に在来工法)場合、増築、改築がとてもしやすく、ライフサイクルの変化に対応して、自由に増築ができ、間取りの変更もできることから、足し算のイメージを連想させるのだと思います。

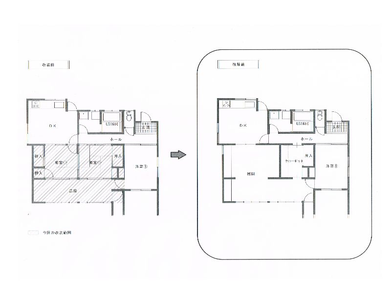
最初は、押し入れをクローゼットに改装したいという相談だったと記憶しています。何度かやりとりをしていくうちにせっかくお金をかけるなら、ということで、和室2間と縁側を含めたところで、プランを提案いたしました。上の図面の左側が改装前の間取りですが、和室2間、縁側の部分にタンスや洋服掛があって、南側の一番居心地のいい場所が、納戸のようになっていました。提案では、和室2間と縁側をリビングとちょっと大きめのクローゼットにしています。

改装前の和室。納戸として使用されていました。

改装前の和室。洋服掛などがあります。
今回のリノベーションでは、住宅性能を上げることもひとつのテーマでした。普通サッシをペアガラスに変更。断熱材を設置できるところ(屋根、床)には、断熱材を設置しました。あとは、床材を小国産の地熱低温乾燥した厚さ30mmの杉材を施工することで、暖かさを体感できるようにしました。

室内パース
床は、低温乾燥した杉材30mmを。建具も突板で大川の建具屋さんにつくっていただきました。

解体時の内部。縁側の部分が増築されたことがわかります。

小屋組み。白蟻、腐朽などがなく、構造体は問題がありませんでした。



リビングを望む。奥様が絵がお好きとのことで、数点の絵画が置かれています。

解体時に既存の筋交い位置を調査し、可能な限りサッシを設置しました。

リビングとクロゼットの間仕切り。LEDの間接照明を設置することで、空間の広がりと明るさを確保しました。

カーテンをしたリビング。

縁側の部分。左手はペアガラスのサッシに変更。





 前のページへ
前のページへ




